In the midst of the bustling city life, it's a tranquil haven where one feels both attached and emancipated.

Filigree of courtyards and built spaces, weave together this serene one-story residence meant for multiple generations of a closely knit Indian family spicing-up their lifestyle.

In the heart of Noida, on the flood plains of Hindon River, amidst abundant created greenery, stands a well-proportioned idyllic family retreat for a prominent Indian businessman that epitomizes the seamless fusion of architectural innovation and nurtures a deep connection with nature, showcasing a blend of contemporary living and the tranquil environment.

Conceptually, the foundation is in traditional Indian architecture and materials. Stone and white traceries, which are enhanced with contrasting palette of polished marbles and mirrored walls to set the contemporary scenes.

Crafted to cater to the diverse needs of a multi-generational family, every corner of the space is designed for comfort and utility, and familial intimacy like flavors and colors of Indian spices, fostering peace and well-being for all residents.

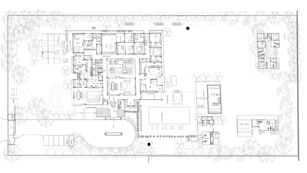
The House is composed of blocks tied up with sequence of courtyards, large windows and buildings carefully arranged to accommodate planned landscape features– thereby kind of minimizing intrusion into the landscape- over time once nature softens and absorb the sculptural masses into their environment.

For this serene one-story residence designed on single floor Vastu played integral role in the design layouts , featuring a central Central courtyard the Brahmasthana which functions as the heart of the house or calm focal point that let in fresh air and natural light with everybody joining by default for early morning yoga, winter afternoon lunch or evening family chats.

The built structures, to include main house, multi function block, Office area, SPA and servant blocks adds to nearly 20,000 sq. ft., is distributed strategically on the plot confirming to Vastu principles of design. A swimming pool area with separate access doubles up as a party space strategically placed near entrance for guest entry close to multifunction hall, in the lawns enhances the overall utility of the space. Every room offers views both outward and inward toward the courtyards and surrounding landscape.

The corridor and verandah ceilings are strategically lined with wood, creating a warm ambiance, the porch is adorned with Mangalore tiles, adding a traditional touch to the space,

On the southern side a sit-out extends from Master-bedroom enabling senior members of the family to enjoy warmth of sun which further connects with kitchen garden, most favorite spot of the master.

Sustainability was important design consideration leading to decision making and shaping the house. The possibility of replenishing the ground water table is further increased by the quantity of open areas and sparing hardscaping.

The building orientation and fenestration design ensure daylight optimization for all spaces, minimizing energy consumption. 

Power requirements are met largely through solar energy generation, Glazing are strategically oriented towards east and North, when in South are shaded with larger verandahs, West is largely blank walls.